13 Total Photos [Click to View All]
Listed By
Agency Name: Exit Realty Pros TN
Agency Phone: 8653833948
Shown By
Agency Title: HALO Realty, LLC
Agency Phone: 615 822 3509
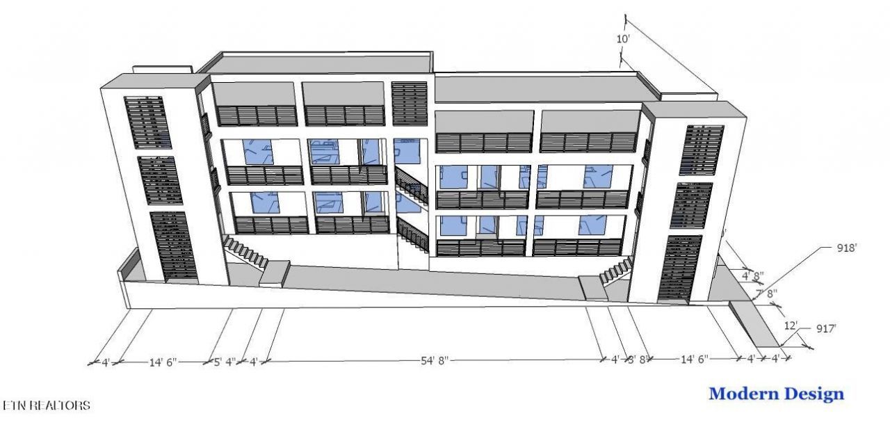
Prime Commercial Development Opportunity in Sevierville, TNPresenting an exceptional investment opportunity at 1483 Catlettsburg Rd, Sevierville, TN 37876-a strategically located 1-acre parcel zoned C-3. This property comes with a professionally designed site plan for an 8-unit apartment complex, crafted by a reputable architect, and is ready for city approval. Capitalize on the lucrative rental market, whether targeting short-term vacationers or long-term residents.Property Highlights:- 1-acre lot - Survey completed, boundaries clearly defined- Utilities in place - Electricity, water, and gas available (City sewer extension option)- Ready-to-go...read more
Estimated Payment
$ 1,032.42 per month $935.30 Principal & Interest $40.25 Property Tax $56.88 Homeowner's InsuranceListed By
Agency Name: Exit Realty Pros TN
Agency Phone: 8653833948
Shown By
Agency Title: HALO Realty, LLC
Agency Phone: 615 822 3509
Send an email with a link to
1483 Catlettsburg Rd , Sevierville, TN 37876.
Contact an agent to learn more about
1483 Catlettsburg Rd , Sevierville, TN 37876.
Thank you for your inquiry! As a thank you, we have a Special Mortgage Offer for You.
We would like to provide you a free, no-obligation, home loan pre-approval review.